Private Chalet
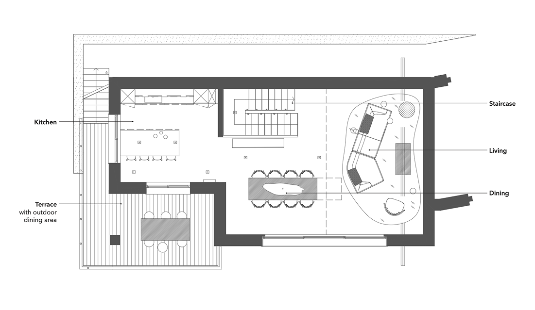
Nestled in the mountains of Les Angles, in the south of France, the four-storey chalet is a residential unit for holidays and weekends with family and friends. The interiors are designed with as much flexibility as possible to make family time unforgettable and fun both outside with mountain activities, and inside with a game room with pool table, a kids' area, a large guest room with bunk beds and a sofa bed, a large extendable dining table to host friends for dinners with friends, a flexible living area with a large projection wall, wardrobes and areas to house equipment.
The materials reflect the characteristic environment of the mountain with wooden floors and coverings, details in real stone, wool and cashmere fabrics, and some colors such as wine, anthracite gray and sage green which define the space giving it elegance and a unique and refined allure.



















