Villa Gadjigo
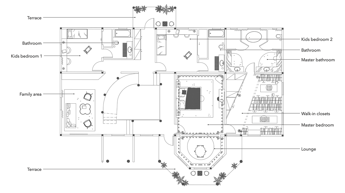
Immersed in the lush green vegetation of tropical Guinea, the luxurious villa was built as a summer residence for the family originally from the country. The interiors are luxurious and refer to the classic thanks to boiserie and mosaics but with furnishings with contemporary design and lines. The two floors of the villa are described by elegant lacquered wood boiserie and frames that reflect them on windows and partitions, as on the staircase at the entrance. Sophisticated coverings such as marble Emperador and Calacatta contrast with stronger colors such as ocher, brick, and peacock green, of the fabrics and leathers that cover the furnishings. Mirrored and smoked glass walls, with their reflections, give a unique and immersive touch, defining and separating communicating spaces such as walk-in closets and corridors.



















